
Mantelzorgwoning Tilligte
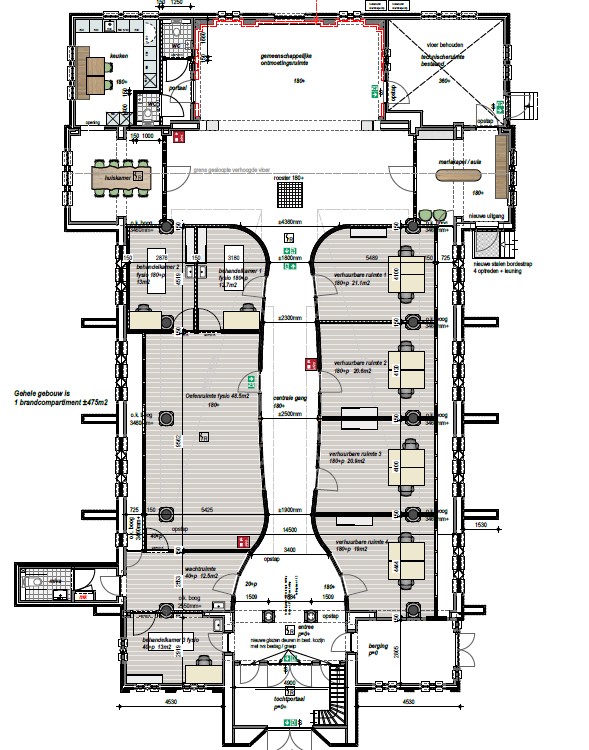
december 5, 2024In samenwerking met Interieurarchitect Anne-Carien hebben wij een plan gemaakt voor het transformeren van het kerkgebouw naar een maatschappelijke gebouw waarin werken en ontmoeten centraal staat. Het ontwerp is zeer enthousiast ontvangen in Fleringen en de transformatie is inmiddels in volle gang. Naar verwachting worden de fysio en kantoorruimtes januari 2026 in gebruik genomen. Onderstaand een video van het ontwerp en een aantal 3d beelden en tekeningen.















